Provozovny

Výběr z několika zrealizovaných staveb této kategorie.
Hovězí jatky - Kámen u Kraslic

Hovězí jatky s porážkou, bourárnou a velkokapacitními chladírnami, která jsou vybudována na místní biofarmě na svazích Krušných hor.

Hovězí bourárna - Manský Dvůr

Komplexní rekonstrukce přístavby u ustájení za účelem vybudování provozu bourárny a zpracování hovězího masa.

Střelnice GoldieArms - Zlatá

Rekonstrukce stávající hospodářské budovy za účelem vybudování střelnice.

BambooWok - OC Tesco Plzeň Borská pole

Integrace nového provozu rychlého občerstvení do nájemní buňky OC Tesco.

BambooWok - OC Kaufland ŽATEC

Integrace nového provozu rychlého občerstvení do nájemní buňky OC Kaufland.

Kavárna Bonjour - Karlovy Vary

Komplexní rekonstrukce části prvního podlaží historického objektu v centru Karlových Varů za účelem vybudování moderní kavárny.

MAD Music Hall - Sokolov

Vestavba moderního Music Clubu pro až 300 návštěvníků v bývalém protiatomovém krytu.

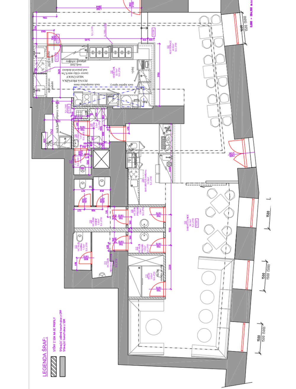
Sehrazad Kebab  - Praha-Vršovice

Komplexní rekonstrukce části prvního podlaží objektu v Praze v části Vršovice za účelem vybudování moderního baru s rychlým občerstvením.

Pneuservis Pták - Sokolov

Vestavba provozovny pneuservisu v bývalém krytu civilní obrany v prvním podzemním podlaží.

Jimmy Kebab - Kraslice

Integrace rychlého občerstvení v rámci změny v užívání prvního nadzemního podlaží bytového domu.

 Kontakty

Telefon

Ing. Milan Snopek:   +420 723 769 862
MgA. Jan Nájemník: +420 725 528 214

Email

MilanSnopek@seznam.cz
jan.najemnik@gmail.com

O nás

Projekční kancelář založena v roce
2014 v Sokolově. 

Firemní údaje
  • IČ: 031 22 905
  • IDDS: xbmjugq
  • Bankovní spojení: Komerční banka, a.s.
  • Č.ú.:107-7795440297/0100
Kontakt
  • Nádražní 189
  • 356 01 Sokolov
  • Telefon: +420 723 769 862
  • Email: MilanSnopek@seznam.cz

Start your own site - Find more