Technická zařízení budov

Výběr z několika zrealizovaných staveb této kategorie.
Jídelna ZŠ Březová - Březová u Sokolova

Nucené větrání modernizovaného kuchyňského provozu stávající jídelny základní školy.

SUPERZOO Billa - Poděbrady

Projekt úprav interního mikroklimatu obchodní jednotky. Komplexní návrh rekuperace s centrální VZT jednotkou a vnitřními split jednotkami s v režimu chlazení/vytápění)

PEPCO Billa - Poděbrady

Projekt úprav interního mikroklimatu obchodní jednotky. Komplexní návrh rekuperace s centrální VZT jednotkou a vnitřními split jednotkami s v režimu chlazení/vytápění)

Střední živnostenská škola - Sokolov

Komplexní návrh ústředního vytápění, chlazení a vnitřních zdravotechnických rozvodů nově rekonastruovaného pavilonu školy.

Braurei Tuxer Bier - Rakousko

Nucené větrání gastro provozu místní pivnice.

Farma Hole - Svrkyně

Nucené větrání kuchyňského provozu na statku rodu Poláčkových.

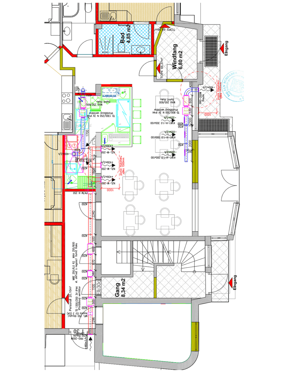
Rekonstrukce bytového domu - Nejdek, Chodovská ul.

Komplexní rekonstrukce bytového domu s novou plynovou kotelnou.

 Kontakty

Telefon

Ing. Milan Snopek:   +420 723 769 862
MgA. Jan Nájemník: +420 725 528 214

Email

MilanSnopek@seznam.cz
jan.najemnik@gmail.com

O nás

Projekční kancelář založena v roce
2014 v Sokolově. 

Firemní údaje
  • IČ: 031 22 905
  • IDDS: xbmjugq
  • Bankovní spojení: Komerční banka, a.s.
  • Č.ú.:107-7795440297/0100
Kontakt
  • Nádražní 189
  • 356 01 Sokolov
  • Telefon: +420 723 769 862
  • Email: MilanSnopek@seznam.cz

How to start your own site - Find more